AL FAYA PHASE 1 & PHASE 2 ULTRA LUXURY RESIDENCES

SAADIYAT - ABU DHABI - UNITED ARAB EMIRATES
ULTRA LUXURY RESIDENTIAL DEVELOPMENT

about project

Located in the prestigious Saadiyat Island Beach District of Abu Dhabi, the Saadiyat Beach Villas & Mansions project sets out to create a world-class ultra-exclusive community. Designed by Nordic Office Architects (NOA), the masterplan integrates two luxury mansions, ten 7-bed villas, and nine 6-bed villas, supported by community facilities including a beach pavilion and a guard house. Surrounded by the Saadiyat Golf Course and with direct access to the beach, the development offers residents a seamless blend of privacy, nature, and modern luxury. Notably, one of the units was sold for 400 million AED — the most expensive residential property ever recorded in Abu Dhabi, underscoring the project's exceptional value and exclusivity. ​ With plot sizes ranging from 1,700 sqm villas to over 7,000 sqm mansions, the design provides bespoke opportunities for VVIP clients to customise their homes. The architecture balances contemporary elegance with functional layouts, emphasising expansive living spaces, wellness facilities, and outdoor connections to the sea and landscape. This project exemplifies a new benchmark for high-end residential living in Abu Dhabi, combining exclusivity, comfort, and design excellence.

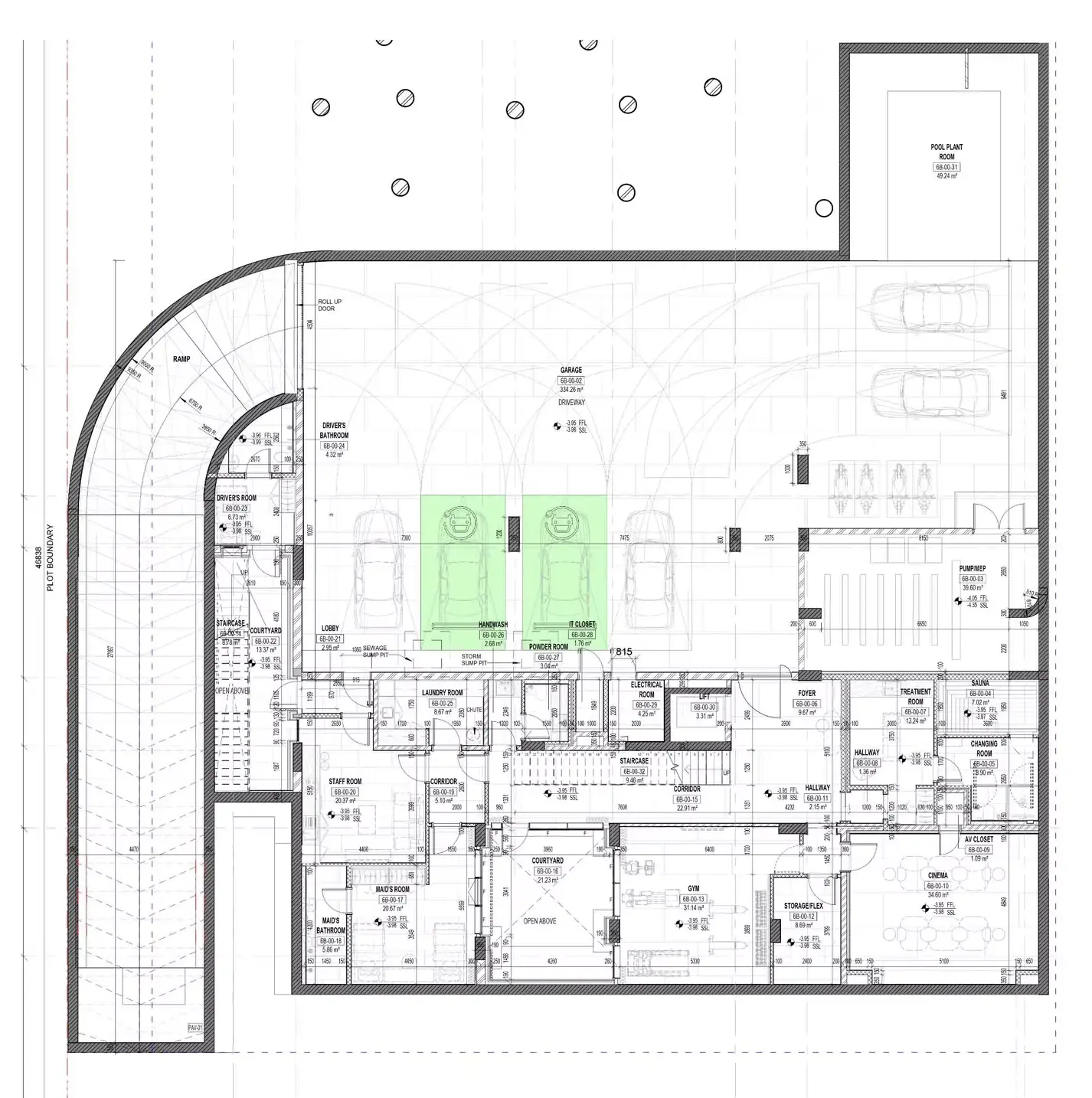
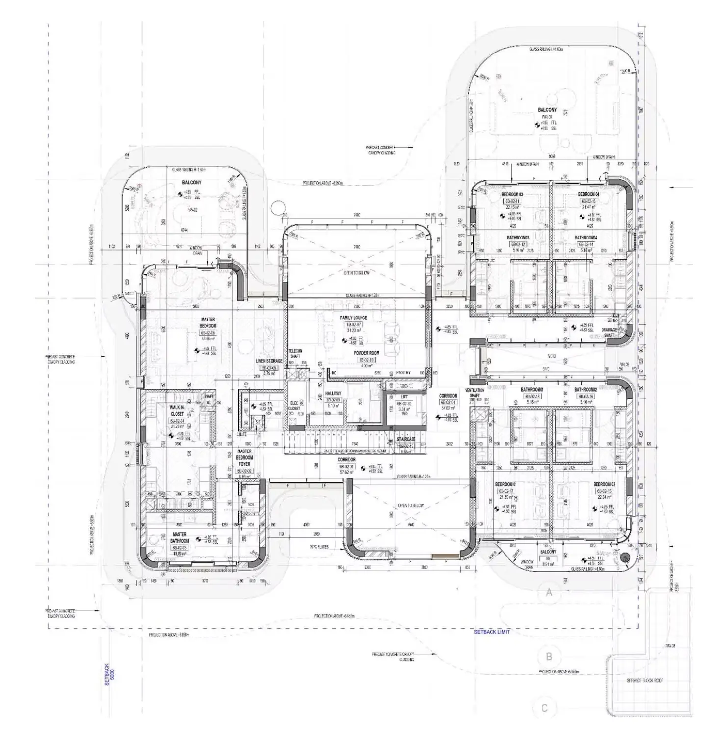
MANSIONS - FLOORPLANS, INTERIORS & EXTERIORS

7 BEDROOM VILLAS - FLOORPLANS, INTERIORS & EXTERIORS

6 BEDROOM VILLAS - FLOORPLANS, INTERIORS & EXTERIORS