MASDAR OS-54 OFFICE DEVELOPMENT

MASDAR CITY - ABU DHABI - UNITED ARAB EMIRATES
OFFICE & MIXED-USE URBAN SPACE

about project

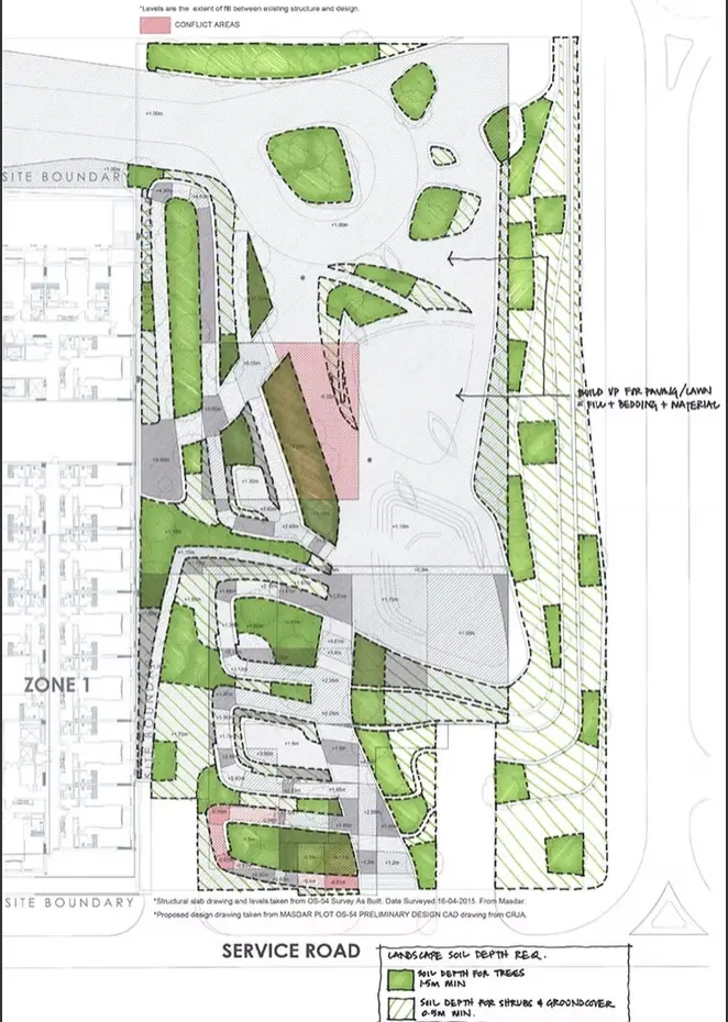
The Masdar OS-54 Office Development is a forward-looking concept for a sustainable open-plan workplace within Masdar City. The design is defined by its floating structural block, elevating office functions to free up the ground level for public plazas, shaded walkways, and green terraces. This approach creates a dynamic balance between workspace and community engagement. ​ The project integrates flexible meeting rooms, hot-desking areas, war rooms, and collaborative zones, ensuring adaptability for diverse user needs. At grade, retail and boulevard activations strengthen connections with adjacent plots (B-01, B-02, J-22), while landscaped podiums and pedestrian studies enhance circulation and social interaction. ​ By combining urban activation, sustainability, and innovative workspace design, OS-54 embodies Masdar’s ambition to create human-centred, energy-conscious environments that support both business and community life.