PRIVATE RESIDENTIAL VILLA

DUBAI - UNITED ARAB EMIRATES
RESIDENTIAL

about project

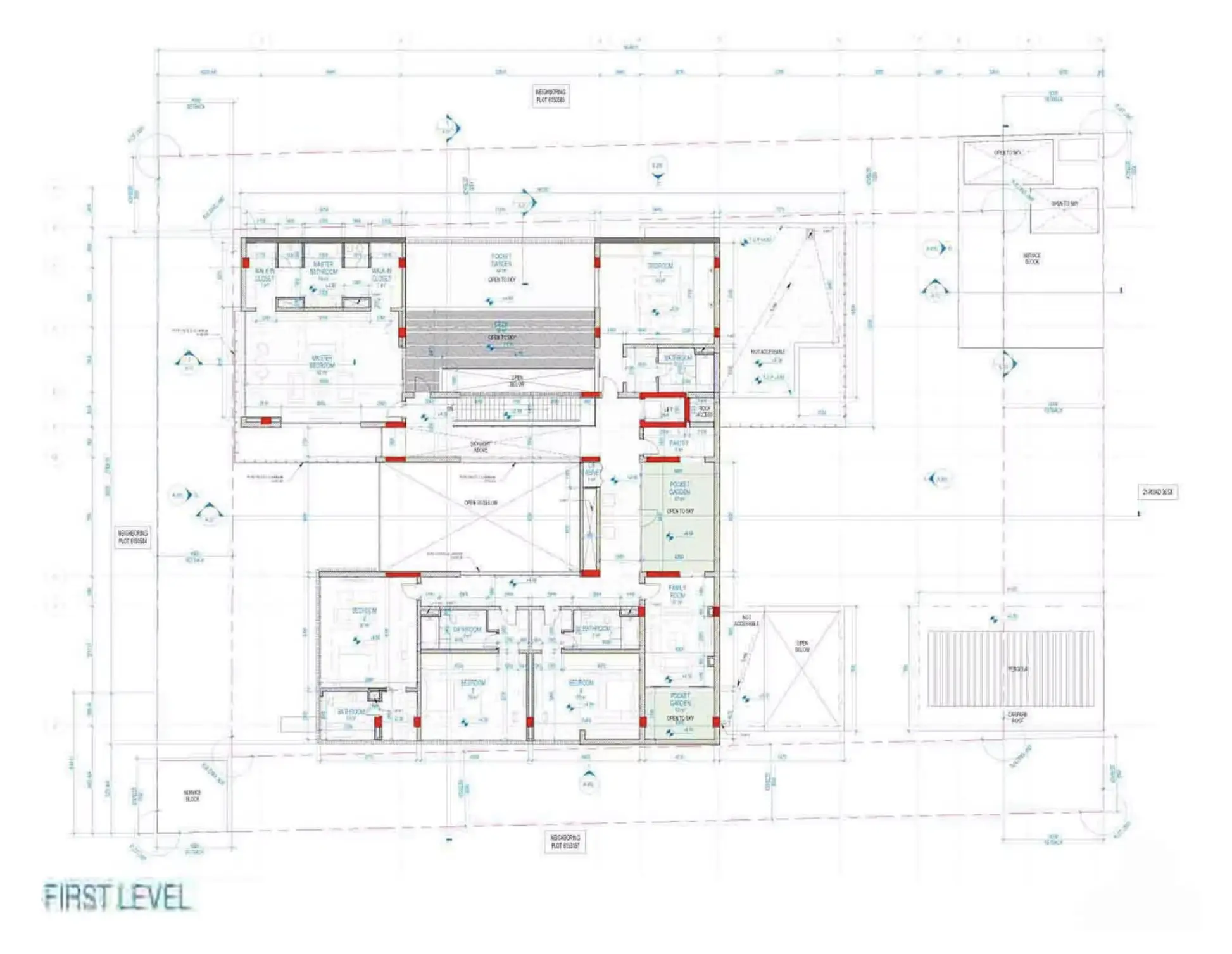
This villa for Ms. Shamma Saeed Obaid Bin Meshar in Dubai represents a refined balance between modern minimalism and functional luxury. The design emphasises clean volumes, privacy, and carefully integrated natural light, creating a serene residential retreat. As Design Manager for the Design Development (DD) and Construction Documentation (CD) stages, responsibilities included design development, client approvals, workshops, and overseeing the delivery of comprehensive Revit documentation. ​ The architectural layout showcases spatial clarity, with a fluid ground floor plan and thoughtfully designed upper levels that prioritise both openness and comfort. The façade treatment, highlighted by a perforated screen wall, combines aesthetic character with shading performance, ensuring both privacy and thermal efficiency. Detailed sectional studies further illustrate the precision in construction and material articulation, underscoring the project’s emphasis on craftsmanship and contemporary design identity.